売買物件情報
新築戸建
新築戸建
【価格】6,780万円
【所在】江戸川区春江町5丁目
【交通】新宿線「一之江」駅徒歩16分
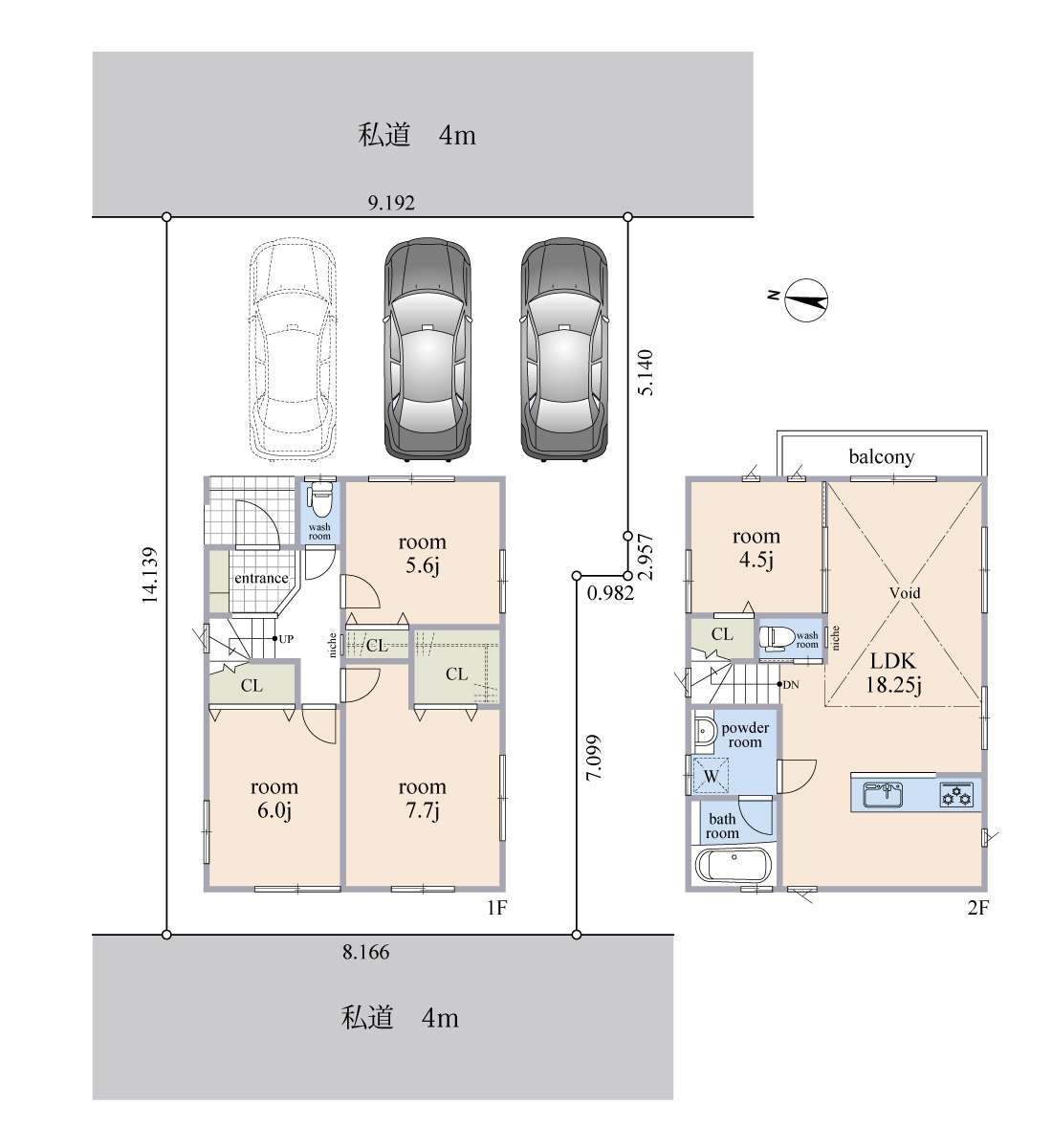
【地積】122.47㎡(約37.04坪)
<おすすめポイント>
- ・敷地面積 37.04坪
- ・両面道路
- ・駐車スペース最大3台(車種による)
- ・吹抜けのあるリビング
- ・公園まで徒歩3秒
- ・地震に強い建築方法を採用、面で支える家
- ・断熱材は隙間のない泡断熱を採用。資格のある者しか施工が許されないアクアフォーム
<物件概要>
価格 /6,780万円(税込)土地建物込
所在 /江戸川区春江町五丁目27-3他一筆
土地面積 /157.22㎡(セットバック後有効宅地122.47㎡)
建築確認番号/第24UDI1T02431号
構造規模 /木造2階建
建物面積 /94.39㎡
間取り /4LDK+カースペース
法令制限等 /第一種住居専用地域/建ぺい率60%/容積率/200%(前面道路幅員による制限により160%)/準防火地域/第二種高度地区/最低敷地面積70㎡(地区計画により100㎡)/日影規制4h・2.5h・4m/地区計画 二之江西地区地区計画区域/インフラ:上下水道公営・都市ガス・東京電力
<特筆事項>
接道 /東側私道幅員4mに9.1m・西側私道幅員4mに8.16m接道。※本件土地は建築基準法上の道路に接道がありません。従って再建築の際は建築審査会の許可が必要です。本物件は基準法43条2-2許可 令和6年8月26日 第R06許可43江戸川区00032号の許可を得て、建築基準法第43条2項2号の許可を受け建築確認済証を取得しています。
〇住宅ローンが組める金融機関に制限有
本件土地は、建築基準法上の接道がないため、お客様の与信等によっては住宅ローンの金融機関の制限を受ける場合があります。弊社は融資実績のある金融機関をご紹介可能です。
資料
※図面は計画段階のものです。実際は若干の変更(吹き抜けをつけたり)
※お手数ですが、こちらの物件は電話にてお問合せください。
※完成前ですが、ご案内可能です。サンダルやハイヒールはご遠慮ください。
お気軽にお問合せください。
専属専任/株式会社相互住宅 東京都知事(12)第39462号
担当者:カサイ
TEL :03-3675-1401